DAVIES  Centennial, Colorado
 
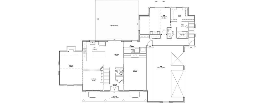
The clients were looking to enlarge their existing kitchen, add a master suite and enlarge the garage limiting the extent of the project to the main level.  The existing site is on a large corner lot allowing for plenty of room to expand.  After initially meeting with the client a couple of design options were generated and presented, the result was a sketch that extended the existing kitchen  a few feet toward the back yard thus opening up the existing kitchen/living area allowing for a more open plan.  The extension of the kitchen also allowed for a larger walk-through laundry adjacent to the new three car garage.  The new master suite incorporates a large bedroom with a gas fireplace and access to the newly enlarged cover back patio.  A bathroom and large walk in closet were incorporated into the design to make it a true master suite.





 

  metastudio   A  R  C  H  I  T  E  C  T  S